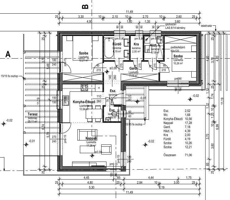
JTMUU2773 családi ház nettó: 71,06 m²
Figyelem!
Alaprajzaink kiindulási pontként is szolgálnak!
Bővíthetők, csökkenthetők, áttrendezhetők.
Áttervezhetőek az adott helyszín építési szabályait figyelembe véve.
Kiindulási alapnak számíthatnak egy egyedi elképzeléshez is!
Helyiséglista:
WC 1,68 m2
Előszoba 7,25 m2
Konyha + étkező 10,56 m2
Nappali 17,28 m2
Gardrób 7,18 m2
Háztartási helyiség 3,18 m2
Kamra 2,00 m2
Fürdő 4,19 m2
Szoba 10,26 m2
Szoba 12,21 m2
Összesen: 71,06 m2




